Nepsis Multifunctional Center
Project description
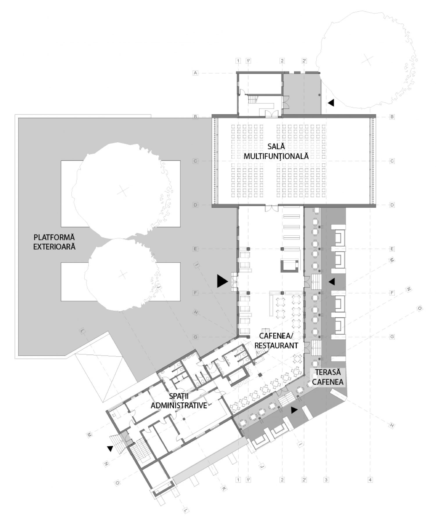
Propunere – centru multifuncțional
Location
Giroc, Romania
Client
Fundația Filantropia
Architecture
ATG Studio
Surface
1900 m²





Propunere – centru multifuncțional
Giroc, Romania
Fundația Filantropia
ATG Studio
1900 m²




