Casa A
Descriere proiect
Locuință unifamilială
Locație
Arad, Romania
Arhitectură
ATG Studio
Colaboratori
Lannert Cristian – structură
ID Design Studio – amenajare interioară
An finalizare
2018
Suprafață
530 m²
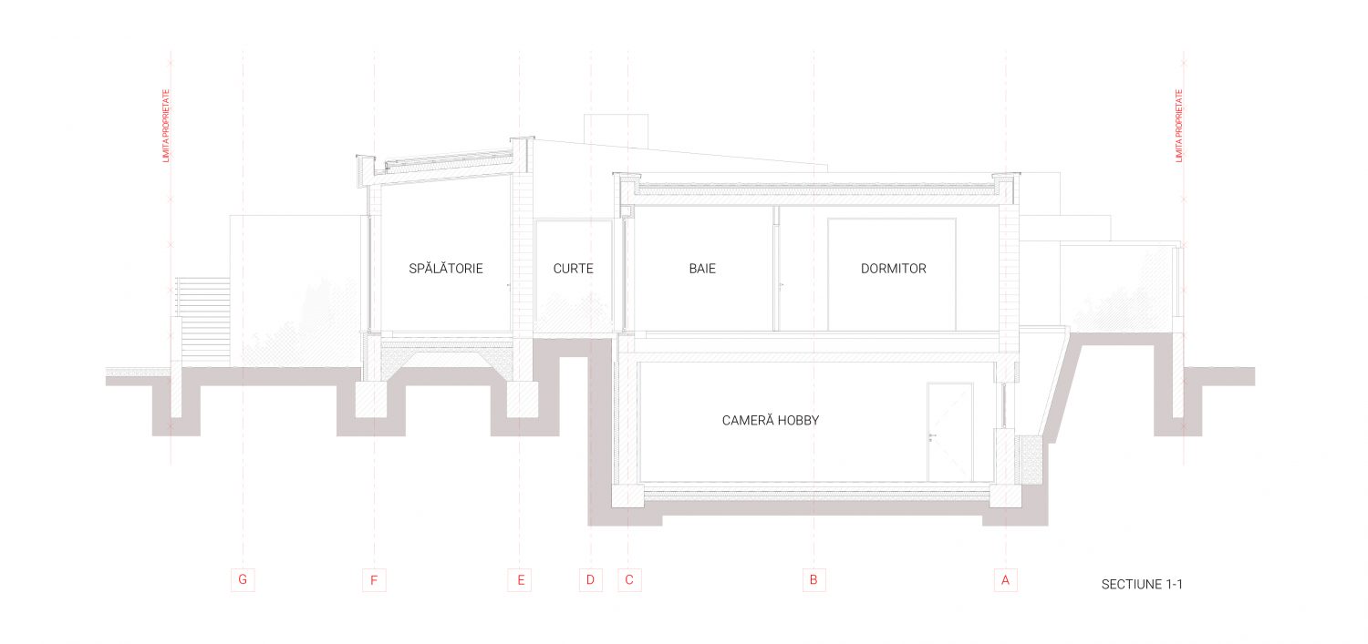
Proiectul casei A a adus pe lângă cerințele cu care vine orice proiect nou, și provocarea de a integra în concept fundațiile deja existente. Astfel, am propus o casă cu subsol și parter, în care zona de zi și cea de noapte sunt delimitate clar, iar subsolul este utilizat ca spațiu de recreere. Volumul se evidențiază prin prisma orizontalei accentuate, a relațiilor interior – exterior și a detaliilor atent studiate.

















