Casa CN
Descriere proiect
Construire locuințe individuale
Locație
Dumbrăvița, Romania
Arhitectură
ATG Studio
Colaboratori
SC Misca-2011 SRL – structura
Mirza Solutions SRL – instalatii
SC Alco Line M.G. SRL – fatada ventilata
An finalizare
2022
Suprafață
345 m²
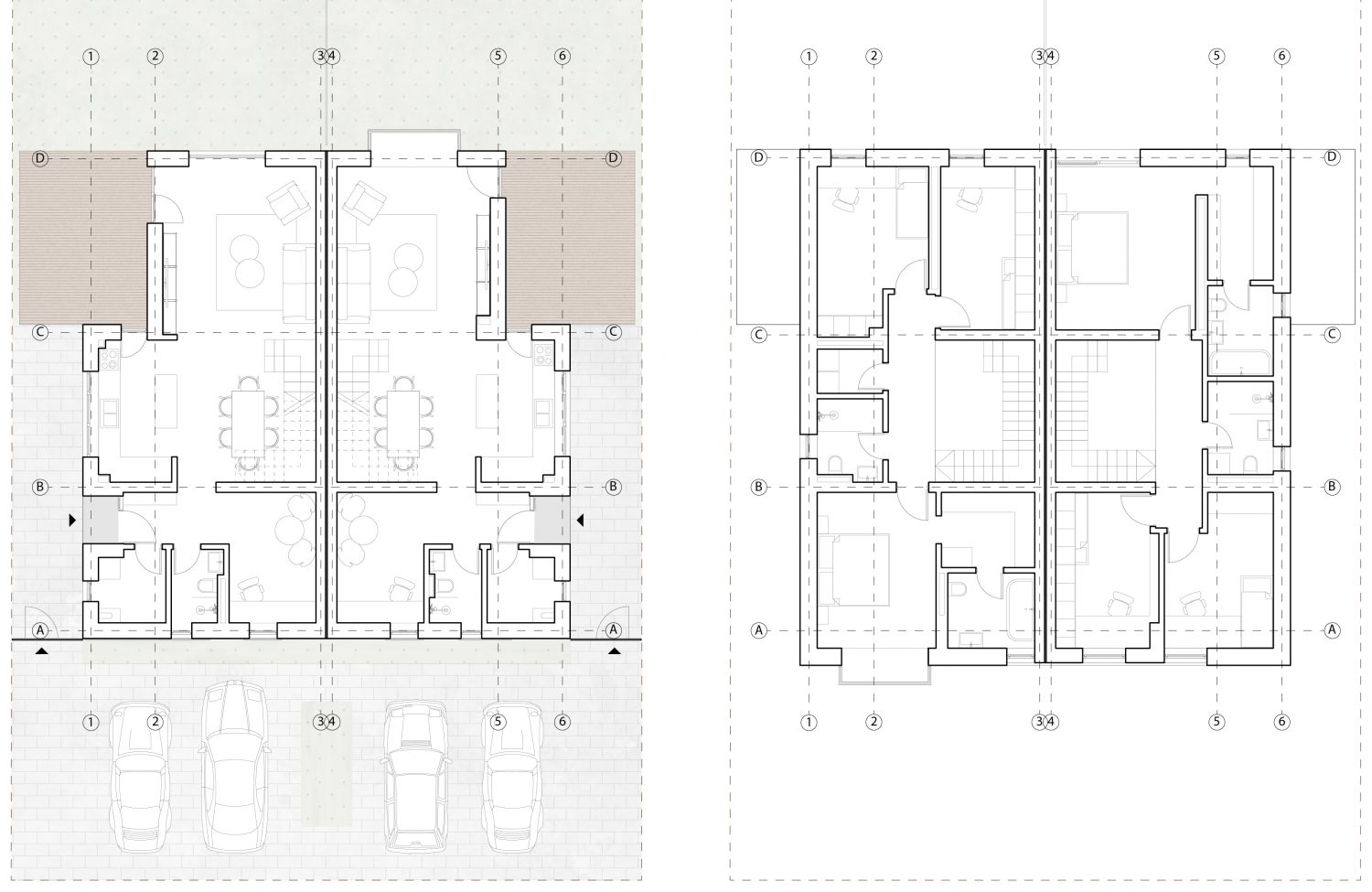
Situată în Dumbrăvița, Casa CN găzduiește două familii. Scopul proiectului a fost de a crea o arhitectură simplă, dar elegantă, unde intimitatea și lumina sunt elemente cheie.
Spațiul interior a fost proiectat în jurul a două teme principale: scara și conexiunea cu exteriorul. Designul scării este evidențiat de iluminatul zenital pe timpul zilei și de lămpile adiacente pe timpul nopții.
Conexiunea cu grădina este realizată prin deschideri mari și ferestre de tip bowindow plasate strategic.
















