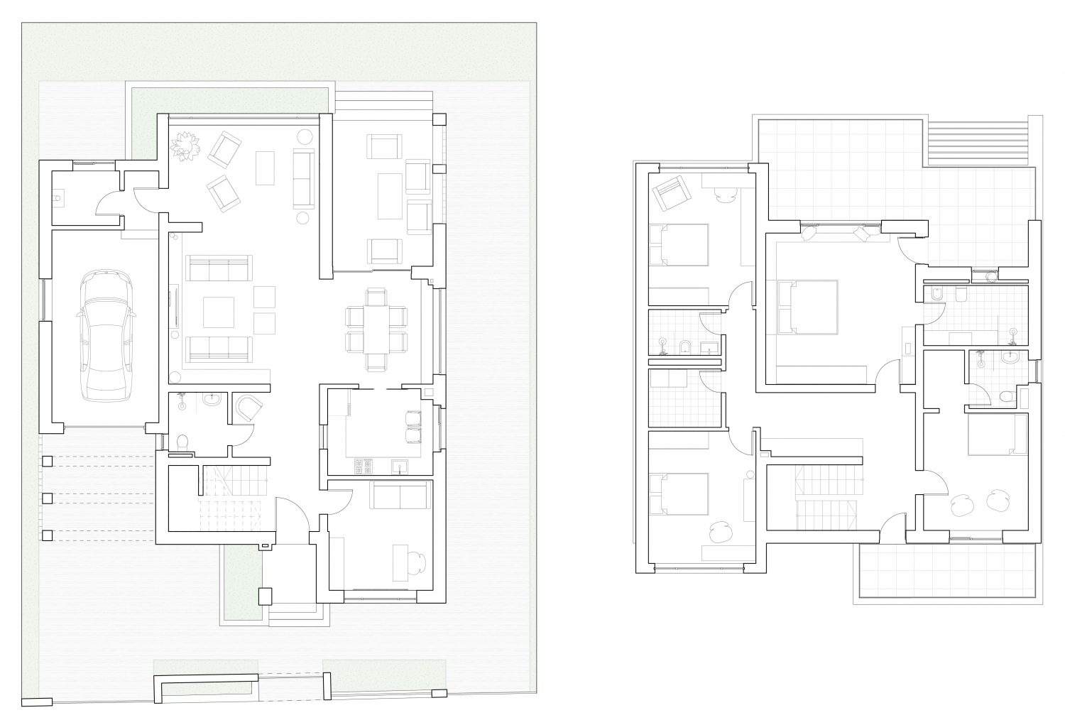
Casa N
Descriere proiect
Modificare casă existentă
Locație
Dumbrăvița, Romania
Arhitectură
ATG Studio
Colaboratori
SC Misca-2011 SRL – structură
SC Bon Steel SRL – structură metalică
Petrik Engineering SRL – instalații
An finalizare
2022
Suprafață
314 m²
















