Ciocârliei
Descriere proiect
Construire locuințe colective mici
Locație
Timișoara, Romania
Client
Ital Fimco
Arhitectură
ATG Studio
Colaboratori
S.C. Misca 2011 – structură
S.C. Parsymonia – instalații
An finalizare
2019
Suprafață
2300 m²
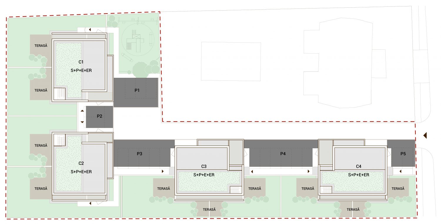
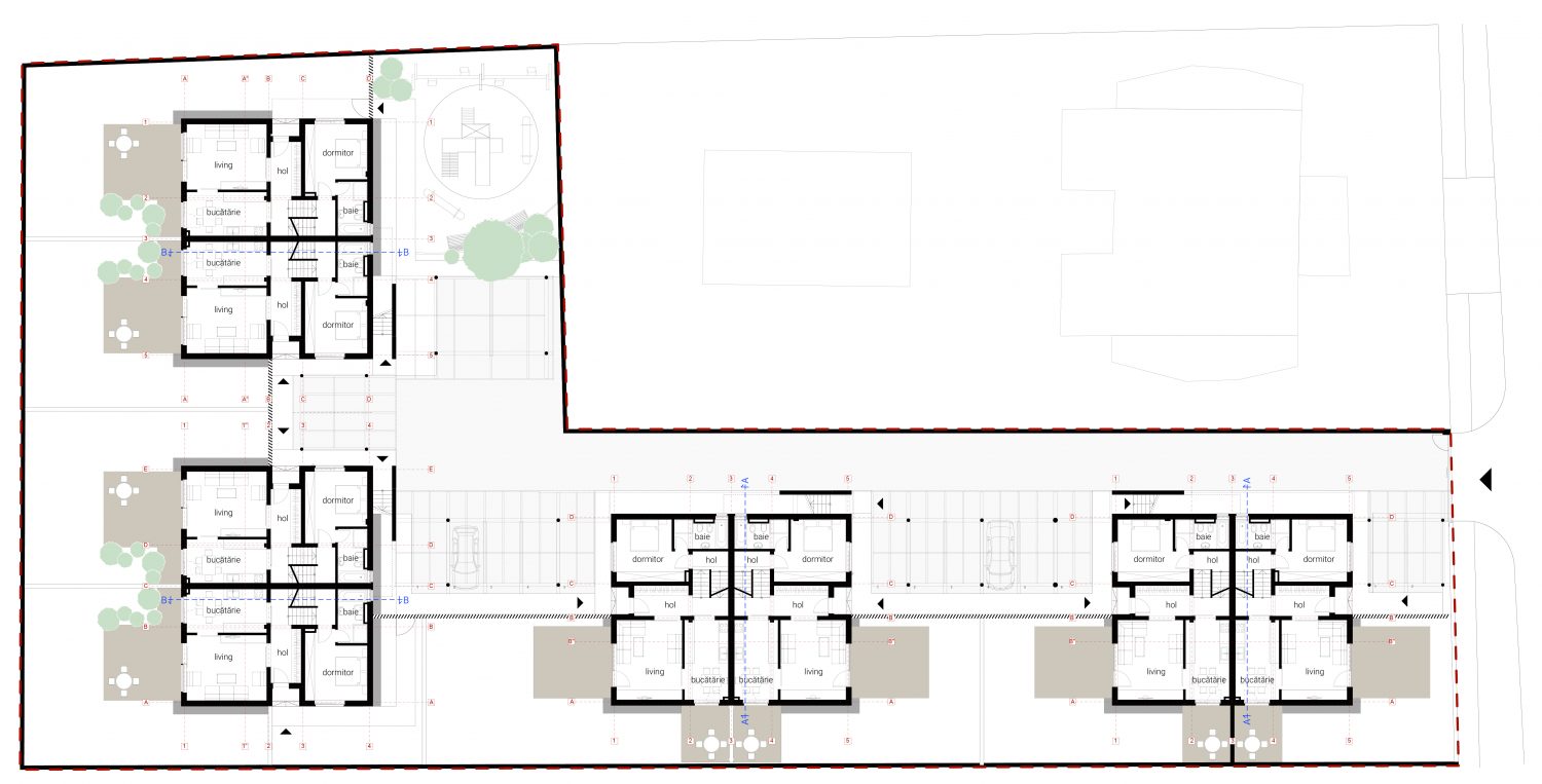
Ciocârliei 77 prezintă conceptul unui ansamblu rezidențial mic, alcătuit din 12 apartamente structurate în 4 volume independente, cu contrast între simplitatea volumetrică și complexitatea organizării funcționale.
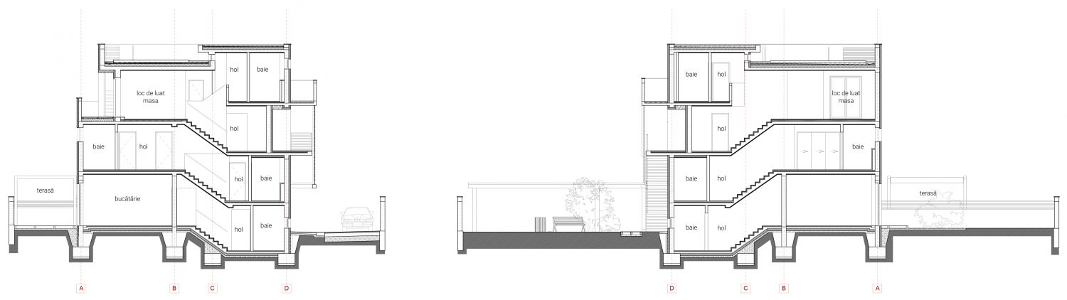
Subiectul principal este spațiul interior, de tip Raumplan, care devine prioritar, acest tip de organizare având un potențial deosebit pentru arhitectura domestică. Se crează o ambiguitate între structură și organizarea spațială, fiecare spațiu privește la următoarele, păstrându-și autonomia și intimitatea relativă.

















