City of Mara – M13 Sport
Project description
Gym proposal within the City of Mara ensemble
Location
Timișoara, Romania
Client
Architecture
ATG Studio
Completion
–
Surface
5500 m²
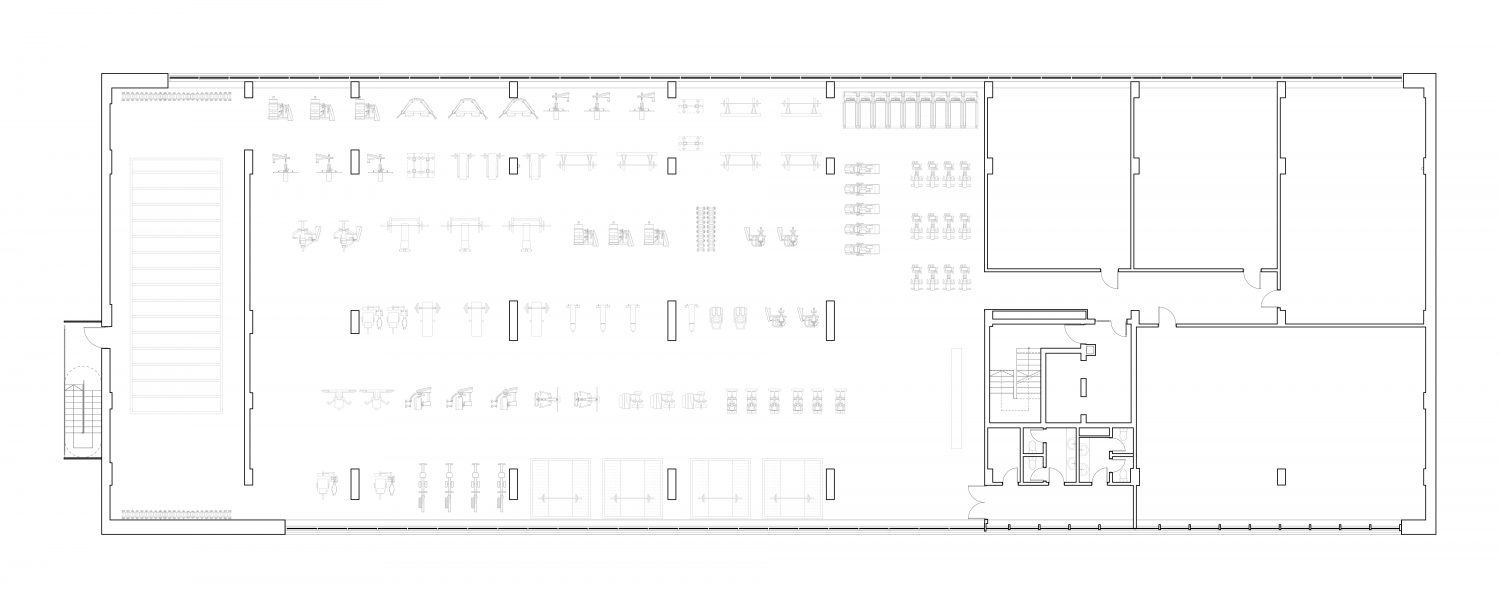
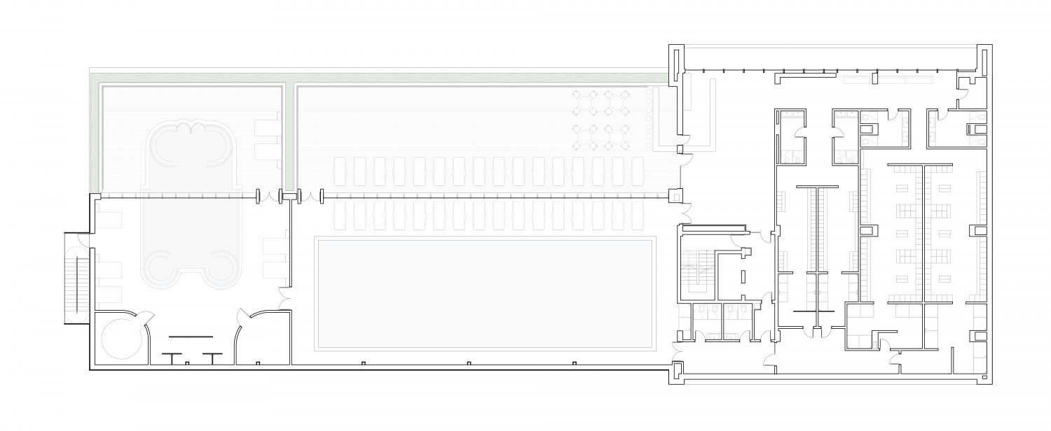
M13 Sport is a project within the City of Mara residential complex, a project of high importance because it supports the idea of the whole complex to be more than just a residential neighborhood.
The proposed gym serves both the City of Mara and the nearby neighborhoods.
From a functional point of view, we proposed a cafe, with generous glazed areas, facing the park, a fitness area and various spaces for group sports activities (cycling, yoga, aerobics, etc.), and on the last level a green terrace for outdoor sports activities. The most important aspect of this proposal is the indoor running track, which surrounds all the halls, with a visual relationships between the track and the activities inside the halls, respectively the with the exterior. In this sense, we have proposed a series of glazed consoles, designed as rest areas, oriented towards key points of the whole or its surroundings.









